Dharm Gill Realtor

19948 results | Page 361 of 1663
12 24 48


LOADING

For sale
$498,900
25 TEETER Place Unit# Lot 8, Grimsby, Ontario

25 Teeter Place Unit# Lot 8

Grimsby, Ontario

Discover a rare opportunity in the heart of Old Town Grimsby with 10 individual detached custom home lots available for permit application within the prestigious Dorchester Estates Development. This established community, celebrated for its upscale residences and charming ambiance, invites homebuyers to create their dream homes in a picturesque setting. Each spacious lot provides the perfect canvas for personalized living, nestled between the breathtaking Niagara Escarpment and the serene shores of Lake Ontario. The court location offers a tranquil and private retreat, allowing residents to escape the hustle and bustle of urban life. Imagine waking up to the gentle sounds of nature and unwinding in a peaceful environment that fosters relaxation and well-being. This idyllic setting doesn't compromise on convenience—enjoy easy access to a wealth of local amenities, including vibrant shopping centers, diverse restaurants, and recreational facilities. Families will appreciate the excellent educational institutions nearby, as well as the newly constructed West Lincoln Hospital/Medical Centre, ensuring healthcare is just moments away. Whether you're envisioning a modern masterpiece or a classic family home, these custom home lots represent not just a place to live, but a lifestyle enriched by community, nature, and convenience. Seize the opportunity to invest in your future today in one of Grimsby's most coveted neighborhoods! (id:58576)

RE/MAX Escarpment Realty Inc.

For sale
$599,900
16 TEETER Place, Grimsby, Ontario

16 Teeter Place

Grimsby, Ontario

Discover a rare opportunity in the heart of Old Town Grimsby with 10 individual detached custom home lots available for permit application within the prestigious Dorchester Estates Development. This established community, celebrated for its upscale residences and charming ambiance, invites homebuyers to create their dream homes in a picturesque setting. Each spacious lot provides the perfect canvas for personalized living, nestled between the breathtaking Niagara Escarpment and the serene shores of Lake Ontario. The court location offers a tranquil and private retreat, allowing residents to escape the hustle and bustle of urban life. Imagine waking up to the gentle sounds of nature and unwinding in a peaceful environment that fosters relaxation and well-being. This idyllic setting doesn't compromise on convenience—enjoy easy access to a wealth of local amenities, including vibrant shopping centers, diverse restaurants, and recreational facilities. Families will appreciate the excellent educational institutions nearby, as well as the newly constructed West Lincoln Hospital/Medical Centre, ensuring healthcare is just moments away. Whether you're envisioning a modern masterpiece or a classic family home, these custom home lots represent not just a place to live, but a lifestyle enriched by community, nature, and convenience. Seize the opportunity to invest in your future today in one of Grimsby's most coveted neighborhoods! (id:58576)

RE/MAX Escarpment Realty Inc.

For sale
$669,000
217 LOUISE STREET, Welland, Ontario

217 Louise Street

Welland, Ontario

Welcome to your dream home! This newer 4-bedroom, 3 bathroom home, built in 2021, boasts high ceilings and is ideally located in the heart of Welland. The open-concept kitchen features stainless steel appliances, a large island, ample cabinet space, making it ideal for culinary enthusiasts.The spacious living room offers high ceilings, hardwood flooring, and a walkout to a deck & beautiful backyard, creating a perfect space for relaxation and summer BBQ's. The primary bedroom is generously sized with large windows, a spacious walk-in closet, and a 3-piece ensuite bathroom for added convenience.The second, third, and fourth bedrooms are versatile spaces, ideal for a productive home office setup, children's rooms, or guest accommodations. An unfinished basement with a separate entrance presents endless potential for customization to suit your specific needs or future expansion plans. Located in a great neighbourhood close to schools, parks, and hospitals, this home combines modern comfort with convenient accessibility. Don't miss out on this exceptional opportunity! Perfect for investors and first-time home buyers!! **** EXTRAS **** Stainless Steel Appliances - Fridge, Stove, Dishwasher, Washer, Dryer & Remainder of Tarion Warranty! (id:58576)

4 Bedroom 3 Bathroom 1499.9875 - 1999.983 sqft

Search Realty

For sale
$519,900
905 - 361 QUARTER TOWN LINE ROAD, Tillsonburg, Ontario

905 - 361 Quarter Town Line Road

Tillsonburg, Ontario

Step into a world of elegance and sustainability at Tillsonburgs first and only Net Zero ready developmenta sanctuary where modern luxury and eco-friendly living intertwine. This enchanting home features three inviting bedrooms and 2.5 exquisitely designed baths, all nestled within an open-concept layout that beckons you to host intimate gatherings or enjoy peaceful moments with loved ones. As you wander through the space, allow the soft glow of natural light to wrap around you, streaming in through large windows that frame delightful views of the outside world. The custom designer kitchen is a dream come true, showcasing a generous island adorned with stunning quartz countertops that inspire culinary creativity. Imagine sharing laughter and stories as you cook together, surrounded by the allure of top-of-the-line stainless steel appliances that promise to elevate every meal. Step outside to your private walk-out terrace balcony, a perfect haven for sipping wine under the stars or enjoying morning coffee while the sun kisses the horizon. Retreat to the master suite, your personal oasis, complete with an ensuite bath and a spacious walk-in closet, where you can indulge in the simple pleasures of life. A convenient laundry space on this level adds to the effortless charm of this home. Available for immediate occupancy, this exquisite residence is nestled near parks and schools, offering a nurturing environment for professionals, families and outdoor lovers alike 360 Westwhere your dreams of a luxurious, sustainable lifestyle come to life. (id:58576)

3 Bedroom 3 Bathroom 1799.9852 - 1998.983 sqft

RE/MAX Real Estate Centre Inc.

For sale
$1,250,000
7563 DALE ROAD, Port Hope, Ontario

7563 Dale Road

Port Hope, Ontario

Truly amazing home backing onto the first hole of Dalewood Golf Course. Equally distant to both downtowns of charming Cobourg (Cobourg Beach) and Port Hope (less than 10 minutes). Perfect in every detail. Beautiful front foyer displays central wooden staircase and opens on both sides to a large livingroom with the eye catching fireplace on the left and a large family room adjoining the main floor office on the right. Huge kitchen takes up the whole back of the house, with a separate dining area, quartz centre island with sink, 6 brand new stainless-steel LG Smart ThinQ appliances, 2 exits to the yard and back deck with hot tub, and clear view of the golf course behind. 4 large bedrooms on the second floor, all with hardwood floors and 4 modern, lovely bathrooms - 5 pc ensuite in primary bedroom, 3 pc ensuite in second bedroom, 3 pc bathroom in hall, all walk-in closets. Second floor laundry room with quartz counter top and hardwood floors. Lots of large windows to let in the views and the light everywhere. **** EXTRAS **** All tiles are porcelain, all counter tops quartz. Floors are all 3/4\" engineered hardwood. All appliances are new with warranties and manuals. Smart technology throughout. See attached list of more features. Bsmnt measurement estimated. (id:58576)

4 Bedroom 4 Bathroom 2499.9795 - 2999.975 sqft

Royal LePage Signature Realty

For sale
$729,900
5 OXFORDSHIRE LANE, Kitchener, Ontario

5 Oxfordshire Lane

Kitchener, Ontario

Welcome to this beautifully maintained home, filled with natural light, high ceilings, pot lights, and hardwood flooring throughout. The main floor includes a separate unit with its own side entrance and washroom, offering the potential for rental income a unique feature of this property. Conveniently located near schools, the GO train, LRT, and downtown Kitchener. With 4 bedrooms and 4 bathrooms, this home is a must-see and won't last long! (id:58576)

4 Bedroom 4 Bathroom 1099.9909 - 1499.9875 sqft

Royal LePage Superstar Realty

For sale
$829,900
23 WYN WOOD LANE, Orillia, Ontario

23 Wyn Wood Lane

Orillia, Ontario

Welcome to Orillia Town Fresh! Perfectly positioned between Colburn and Elgin Streets, this prime location is just a short stroll from downtown, local grocery stores, scenic parks, and the vibrant Port of Orillia.Step inside through either the street-level entrance or private garage into a welcoming foyer that opens to a versatile rec roomperfect for a home office, gym, or additional living space.The second floor boasts an open-concept layout ideal for entertaining. The modern kitchen, complete with quartz countertops and brand-new appliances, flows seamlessly into the breakfast and living rooms, offering views of the clubhouse. A convenient powder room is also located on this level.Upstairs, the third floor features three sunlit bedrooms, including a serene primary suite with an ensuite bath. Natural light floods the space, thanks to the additional end-unit windows, giving it the feel of a semi-detached home.The showstopper is the massive rooftop terrace, where you can unwind with stunning panoramic views of Lake Couchichinga perfect retreat for hosting friends or enjoying quiet moments.With 2,011 sq. ft. of thoughtfully designed living space, this home includes 3 bedrooms, 3 bathrooms, fresh paint throughout, and a full Tarion warranty transferable to the new owner. Move-in ready and designed for modern living, this property is waiting to welcome you home. (id:58576)

3 Bedroom 3 Bathroom

RE/MAX Right Move

For sale
$730,000
1 RIVERDALE DRIVE, Wasaga Beach, Ontario

1 Riverdale Drive

Wasaga Beach, Ontario

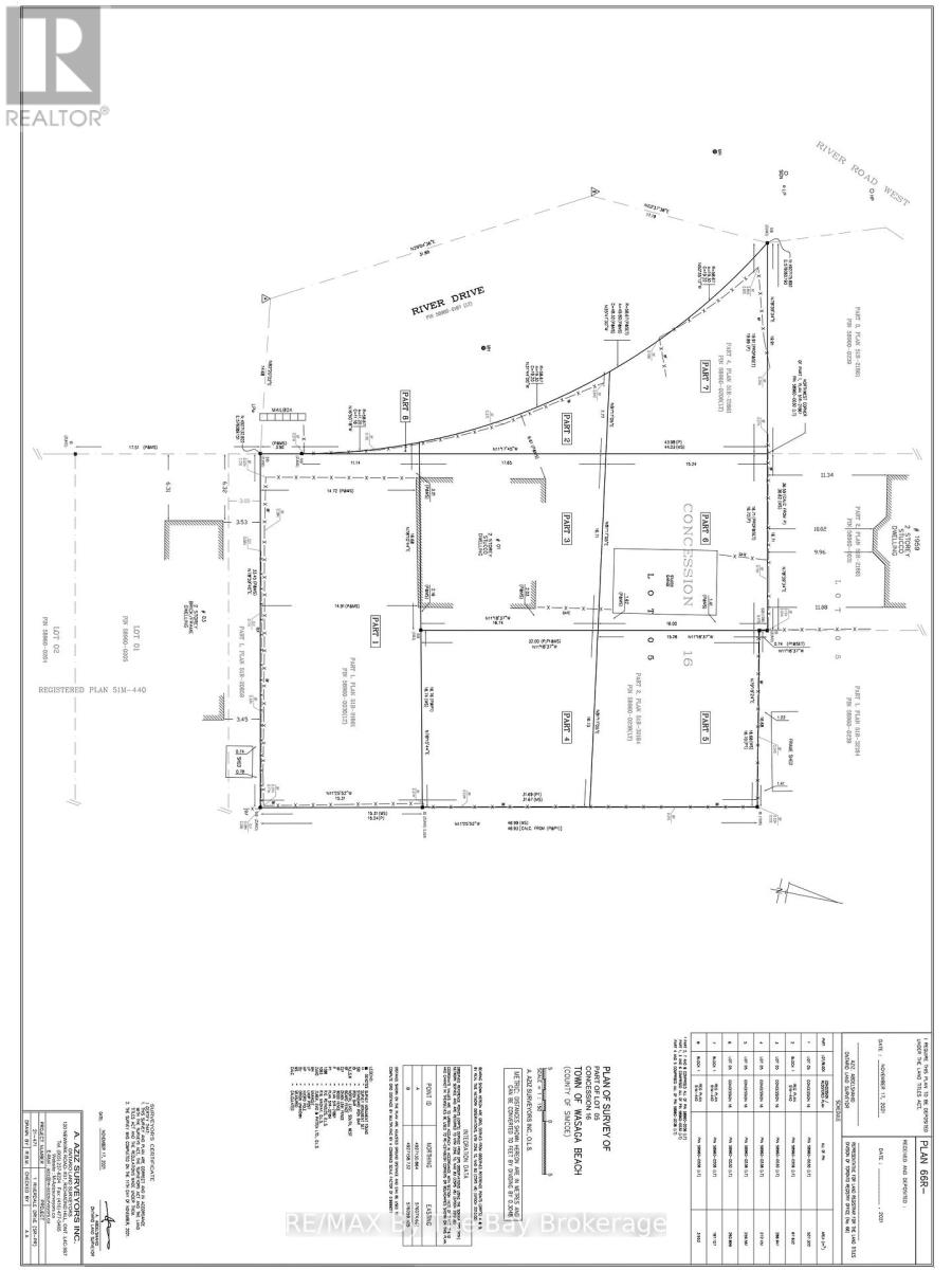
Unparalleled investment opportunity in the heart of Wasaga Beach with three fully serviced vacant lots, ready for development. With the ongoing housing shortage in Ontario, these rare properties, priced under $750,000, offer significant value compared to the 12-month average sale price of a residential vacant lot in the area, which hovers around $350,000. 3 lots 52 x 115 feet, providing ample space for three custom homes or the development of multi-unit residences. There is a chronic shortage of affordable rental properties and duplexes or triplexes may be the highest and best use. Wasaga Beach is rapidly evolving with major developments like the new Casino and Twin Pad + Library facility already in place, anticipating a population growth to 30,000 within six years.Strategically located less than a five-minute drive from Stonebridge Town Centre, this development will offer residents the convenience of nearby amenities including Walmart, Boston Pizza, and Tim Hortons. A short two to three-minute drive to the beaches will appeal to prospective buyers or tenants. Additionally, Wasaga Beach's redevelopment plans promise further enhancement of its iconic beachfront with projects that include a 150-room boutique-style hotel and commercial spaces, balancing living spaces with family-friendly public areas. Investors can align with these future growth plans and benefit from both the commercial and community advancements.This unique offering of a triple lot, already severed into three, is nearly impossible to find. Whether you're a sophisticated developer or an individual with a vision, this is an exceptional chance to contribute to and benefit from the promising future of Wasaga Beach. (id:58576)

RE/MAX By The Bay Brokerage

For sale
$435,000
602 TENTH STREET, Collingwood, Ontario

602 Tenth Street

Collingwood, Ontario

Chic Modern Oasis in Coveted Maple View Court Community. Meticulously renovated home in the heart of Collingwood, where the contemporary design offer stylish and modern living. From the moment you step through the front door, you'll notice the attention to detail and high-end finishes that define this exceptional property.The heart of the home is a brand new, high-end kitchen with quartz countertops, setting the tone for the entire space. Its open-concept layout connects the kitchen, dining, and living areas, offering a bright and inviting atmosphere. Sliding doors lead you to a fully fenced backyard, ensuring privacy with no neighbours behind and ensuring lots of natural light.New flooring, complemented by stylish baseboard moulding throughout the main floor,. Second floor where three generously-sized bedrooms and a newly renovated bathroom offer versatile options for families, couples, or those seeking to downsize or weekend retreat.For first-time buyers, this is a rare move in ready opportunity to live in Collingwood. The basement presents the potential to expand the living space and already features a brand new 2-piece bathroom. Move-in ready and perfectly situated for convenient access to downtown amenities, schools, public transit, trails, ski hills, and Georgian Bay. (id:58576)

3 Bedroom 2 Bathroom 999.992 - 1198.9898 sqft

RE/MAX By The Bay Brokerage

For sale
$3,000,000
365 RAGLAN STREET E, Collingwood, Ontario

365 Raglan Street E

Collingwood, Ontario

Collingwood Industrial freestanding building being offered on a 2.5 acre lot, in an established industrial zone with easy access to Poplar Sideroad and Highway 26. The freestanding steel clad building of 4900 square feet has two 14 x 16 foot drive in overhead doors for drive through loading/unloading. Central Bay Ceiling height of 18 feet with 14 feet high walls combine for multiple storage applications. Just under 500 square feet of functional office space, reception area, one private office, two washrooms, storage space. Oversized lot for outdoor storage, and further development with municipal sewers and water to take advantage of this location for growth opportunities in many new and established businesses. **** EXTRAS **** One electric overhead door, compressor, storage racking (id:58576)

4891 sqft

Royal LePage Locations North

For sale
$899,900
27 WESTCHESTER Drive, Kitchener, Ontario

27 Westchester Drive

Kitchener, Ontario

LOCATION, LOCATION, LOCATION. Perfect for an in-law suite with this bright walkout basement. This stunning home is nestled in a vibrant, family-friendly neighbourhood where community spirit and the tranquillity of nature come together seamlessly situated on a super-sized private lot. Great for a pool or parking your trailer! Boasting numerous updates, including new roof shingles, fresh paint, upgraded flooring, A/C, windows, gutters, and stylish light and bathroom fixtures. This home is move-in ready. Perfectly located near top-rated schools, shopping, parks, a recreation center, and scenic trails along the Grand River. Commuters will appreciate easy access to Waterloo, Guelph, Cambridge, and Highway 401. Don't miss the opportunity to call this one-of-a-kind home yours. Schedule a private showing today and experience it firsthand. (id:58576)

3 Bedroom 3 Bathroom 1550 sqft

RE/MAX Real Estate Centre Inc. Brokerage-3
RE/MAX Real Estate Centre Inc.

For sale
$534,900
35 CANAL BANK Road, Port Colborne, Ontario

35 Canal Bank Road

Port Colborne, Ontario

Located in the heart of Port Colborne, this is a well maintained century home overlooking the canal on a quiet, dead-end street with beautiful canal views from almost every window! While maintaining a timeless aesthetic and old world charm, this home has new flooring, new driveway, new kitchen with granite countertops, and new custom doors. Insulated walls and roof. Outside the large backyard is fully fenced, with 2 sheds and plenty of room for future recreational plans. The 3 season sun room enjoys plenty of natural light. This property is close to Splashtown water park and two public beach properties in a community known for the Welland Canal, historic West St, waterfront park and its great beaches. Move-in ready with easy highway access to Niagara, Hamilton and Toronto regions. Other room - there is an ante room outside the primary bedroom with a walk-in closet. (id:58576)

2 Bedroom 2 Bathroom 1172 sqft

Century 21 Heritage Group Ltd.

Search Properties
Your Favourites

 

No Favourites Found