Contact us for more information
Robert Cekan
Broker
Branden David Paul Eldridge
Salesperson
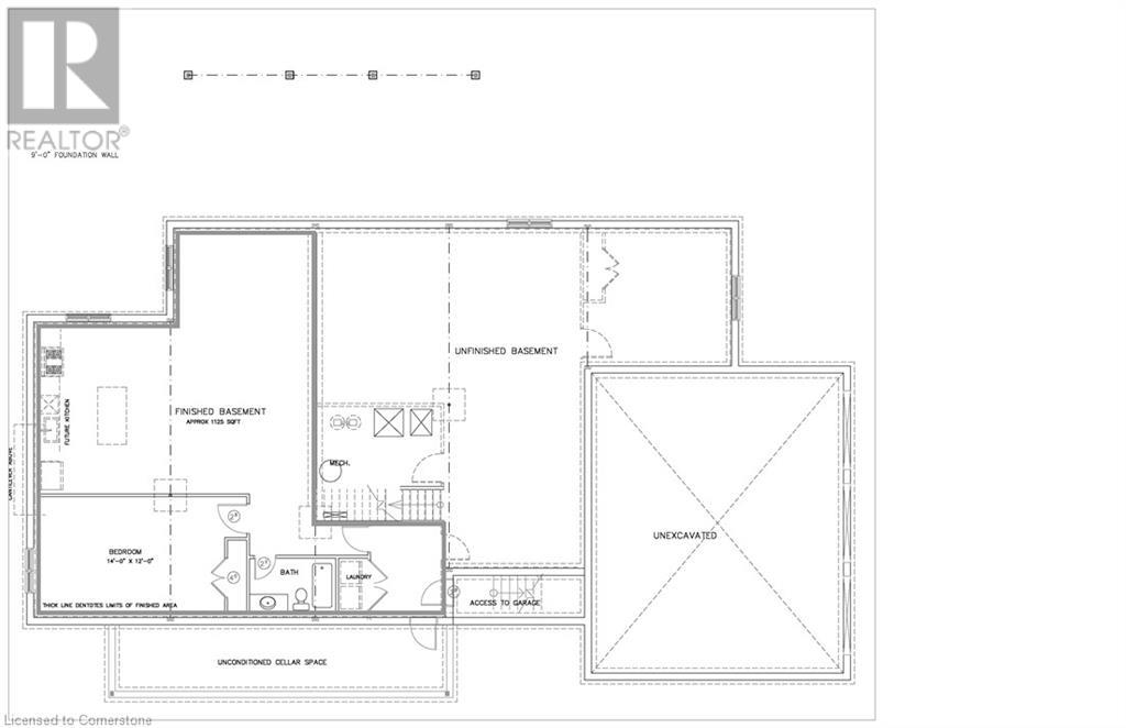
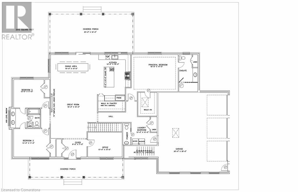
Builder Bonus: Finished Basement with Separate Entrance – Valued at approx. $100K* Welcome to Wildan Estates, a community where rural tranquility meets modern luxury on ½ acre+ lots. The Skimson, our newly expanded bungalow, offers an impressive 3,635 square feet of beautifully finished, livable space, designed for those who value both elegance and functionality. This thoughtfully crafted home features a gourmet custom kitchen, spa-inspired bathrooms, soaring 9ft California ceilings, and a spacious triple attached garage. The professionally finished basement with a separate entrance is perfect for extended family, entertaining, or creating your dream retreat. It also comes with all the mechanical rough-ins for a future kitchen, offering even more flexibility and possibilities. This incredible bonus is a limited-time offering that adds value and versatility to your home. The home’s architectural features showcase a striking combination of high-quality brick, stone, and vinyl, ensuring every home is unique while remaining low-maintenance. Energy-efficient upgrades, including enhanced insulation, EnergyStar Low-E Argon-filled windows, and high-performance HVAC systems, ensure comfort in every season. As part of your home-buying experience, every purchaser gets the opportunity to meet with the builder/designer personally to discuss your specific needs and preferences in detail, ensuring your home is perfectly suited to your lifestyle. Protected by Tarion’s 1-, 2-, and 7-year warranties, this home offers peace of mind and a rare opportunity to experience the best of rural charm and modern living. *Value varies based on model choice (id:58576)
| MLS® Number | 40683460 |
| Property Type | Single Family |
| EquipmentType | Water Heater |
| Features | Country Residential |
| ParkingSpaceTotal | 4 |
| RentalEquipmentType | Water Heater |
| BathroomTotal | 4 |
| BedroomsAboveGround | 3 |
| BedroomsBelowGround | 1 |
| BedroomsTotal | 4 |
| ArchitecturalStyle | Bungalow |
| BasementDevelopment | Unfinished |
| BasementType | Full (unfinished) |
| ConstructionStyleAttachment | Detached |
| CoolingType | Central Air Conditioning |
| ExteriorFinish | Brick Veneer, Stone, Vinyl Siding |
| FoundationType | Poured Concrete |
| HalfBathTotal | 1 |
| HeatingFuel | Natural Gas |
| HeatingType | Forced Air |
| StoriesTotal | 1 |
| SizeInterior | 3635 Sqft |
| Type | House |
| UtilityWater | Municipal Water |
| Attached Garage |
| AccessType | Highway Access |
| Acreage | No |
| Sewer | Septic System |
| SizeDepth | 305 Ft |
| SizeFrontage | 90 Ft |
| SizeTotalText | 1/2 - 1.99 Acres |
| ZoningDescription | S1 |
| Level | Type | Length | Width | Dimensions |
|---|---|---|---|---|
| Basement | Laundry Room | 8'0'' x 10'0'' | ||
| Basement | 4pc Bathroom | 6'0'' x 4'6'' | ||
| Basement | Bedroom | 12'0'' x 14'0'' | ||
| Main Level | 2pc Bathroom | 8'0'' x 3' | ||
| Main Level | Laundry Room | 12'0'' x 10'0'' | ||
| Main Level | 3pc Bathroom | 14'0'' x 6'9'' | ||
| Main Level | Primary Bedroom | 18'0'' x 14'0'' | ||
| Main Level | Kitchen | 12'0'' x 18'0'' | ||
| Main Level | Dining Room | 16'0'' x 15'0'' | ||
| Main Level | Great Room | 18'0'' x 16'0'' | ||
| Main Level | Bedroom | 12'0'' x 11'0'' | ||
| Main Level | 5pc Bathroom | 4'2'' x 6'6'' | ||
| Main Level | Bedroom | 14'0'' x 11'0'' | ||
| Main Level | Office | 13'0'' x 10'0'' | ||
| Main Level | Foyer | 9'0'' x 7'0'' |
https://www.realtor.ca/real-estate/27724578/skimson-logan-court-hamilton