Dharm Gill Realtor


LOADING

5 Harvest Avenue Tillsonburg, Ontario N4G 0E2

Interested?

Contact us for more information


Generating Captcha

Erica Patenaude
Salesperson


RE/MAX A-B Realty Ltd Brokerage
46 Charles St East
Ingersoll, Ontario N5C 1J6

Your Favourites

 

No Favourites Found

 

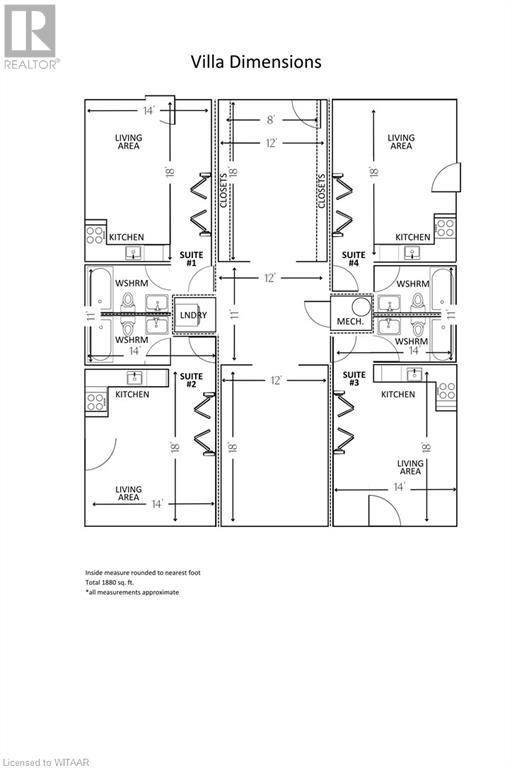
1880 sqft

$4,000 MonthlyInsurance, Heat, Electricity, Landscaping, Water, Exterior Maintenance

This Building is conveniently situated in close proximity to the main artery of Simcoe Street. An ideal location for a wide selection of Professionals! The entire building has four individual areas with their own entrances that include a closet, small kitchen and washroom. The common area includes a washer and dryer, 4 designated storage lockers as well as two generous additional multi- purpose spaces. Let this versatile building start generating ideas for your business! (id:58576)

Property Details

MLS® Number 40643580
Property Type Office
AmenitiesNearBy Hospital, Public Transit, Schools
CommunityFeatures High Traffic Area
Features Southern Exposure, Visual Exposure, Paved Driveway
ParkingSpaceTotal 6

Building

BasementType None
StoriesTotal 1
SizeExterior 1880.0000
SizeInterior 1880 Sqft
UtilityWater Municipal Water

Land

AccessType Highway Access
Acreage No
LandAmenities Hospital, Public Transit, Schools
Sewer Municipal Sewage System
SizeFrontage 343 Ft
SizeTotalText Unknown
ZoningDescription In2-1 (h)

https://www.realtor.ca/real-estate/27385724/5-harvest-avenue-tillsonburg