Contact us for more information
Khaled Khalil
Salesperson
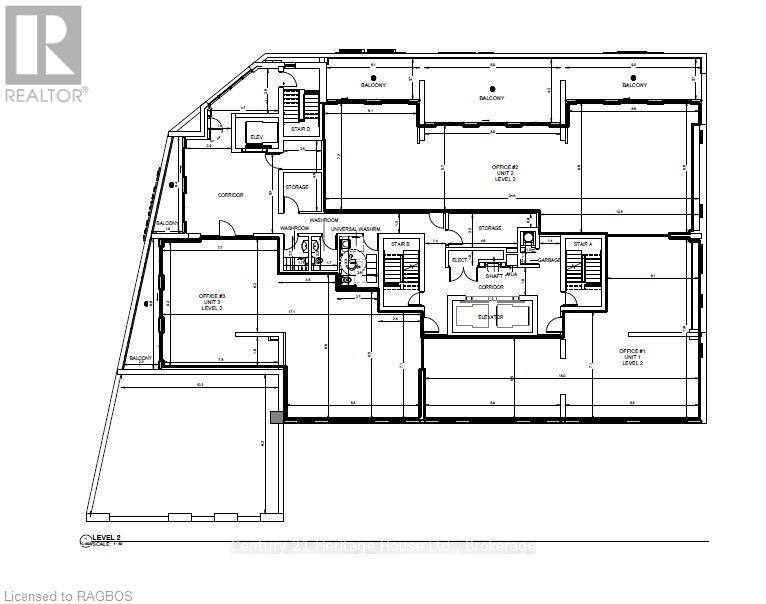
Step into one of Waterloo's most distinctive commercial venues, centrally located just across from the renowned Wilfrid Laurier University. This 5498 square foot, second-floor commercial space, within the newest development in the University Corridor, is entirely at your disposal, providing an exceptional opportunity to strategically expand your business. Benefit from numerous included underground parking spaces and daily foot traffic in the THOUSANDS at this prestigious location. Massive 1000+ square foot terrace included. Approved uses span a wide range, commercial recreation, commercial wellness, office spaces, and personal services. AMPLE PARKING ON SITE FOR CUSTOMERS AND EMPLOYEES. RENT FREE PERIOD AND TENANT ALLOWANCE AVAILABLE. (id:58576)
| MLS® Number | X11880019 |
| Property Type | Vacant Land |
| ParkingSpaceTotal | 15 |
| SizeInterior | 5498 Sqft |
| UtilityWater | Municipal Water |
| Underground |
| Acreage | No |
| Sewer | Sanitary Sewer |
| SizeIrregular | . |
| SizeTotalText | . |
| ZoningDescription | Rmu-81 |
https://www.realtor.ca/real-estate/27707106/200-203-albert-street-waterloo