Dharm Gill Realtor


LOADING

141 Ardagh Road Barrie, Ontario L4N 3V5

Interested?

Contact us for more information


Generating Captcha

Jerry Hay
Broker


Royal LePage First Contact Realty Brokerage
299 Lakeshore Drive, Suite 100
Barrie, Ontario L4N 7Y9

Your Favourites

 

No Favourites Found

 

4 Bedroom 2 Bathroom 1528 sqft
Bungalow Central Air Conditioning Forced Air

$755,000

ATTENTION INVESTORS AND DEVELOPERS, SOUGHT AFTER ARDAGH BLUFFS AREA, OVERSIZE IN TOWN LOT 79.99 FT X 290 FT, 2 BEDROOM BUNGALOW WITH A SEPARATE 2 BEDROOM WALKOUT BASEMENT IN-LAW UNIT, BOTH UNITS ARE PRESENTLY RENTED, LIVE IN THE UPPER AND RENT THE LOWER UNIT TO HELP WITH THE MORTGAGE, QUICK ACCESS TO 400 HIGHWAY, CLOSE TO SHOPPING, SCHOOLS AND PLACES OF WORSHIP, CITY TRANSIT, SEPARATE HYDRO METERS FOR EACH UNIT. (id:58576)

Property Details

MLS® Number 40640076
Property Type Single Family
AmenitiesNearBy Golf Nearby, Hospital, Place Of Worship, Public Transit, Schools, Shopping, Ski Area
CommunityFeatures Community Centre, School Bus
Features Paved Driveway, In-law Suite
ParkingSpaceTotal 3
Structure Shed
ViewType City View

Building

BathroomTotal 2
BedroomsAboveGround 2
BedroomsBelowGround 2
BedroomsTotal 4
Appliances Dishwasher, Dryer, Refrigerator, Stove, Washer, Microwave Built-in
ArchitecturalStyle Bungalow
BasementDevelopment Finished
BasementType Full (finished)
ConstructedDate 1952
ConstructionStyleAttachment Detached
CoolingType Central Air Conditioning
ExteriorFinish Aluminum Siding
FireProtection Monitored Alarm
HeatingFuel Natural Gas
HeatingType Forced Air
StoriesTotal 1
SizeInterior 1528 Sqft
Type House
UtilityWater Municipal Water

Land

AccessType Road Access, Highway Access, Highway Nearby
Acreage No
LandAmenities Golf Nearby, Hospital, Place Of Worship, Public Transit, Schools, Shopping, Ski Area
Sewer Municipal Sewage System
SizeDepth 290 Ft
SizeFrontage 80 Ft
SizeTotalText 1/2 - 1.99 Acres
ZoningDescription Residential

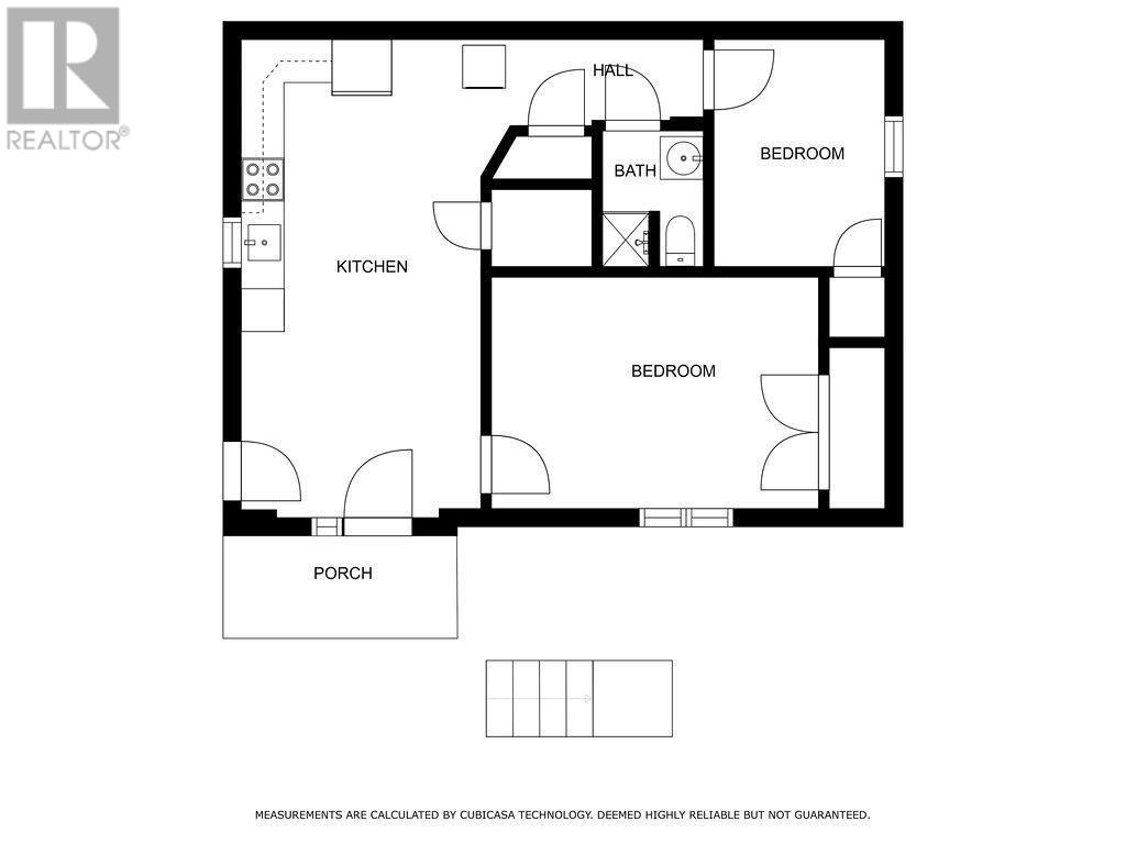
Rooms

Level Type Dimensions
Basement 3pc Bathroom Measurements not available
Basement Kitchen 22'3'' x 11'3''
Basement Bedroom 11'1'' x 10'8''
Basement Primary Bedroom 15'5'' x 10'8''
Main Level Laundry Room Measurements not available
Main Level 4pc Bathroom Measurements not available
Main Level Bedroom 11'1'' x 9'6''
Main Level Primary Bedroom 13'1'' x 11'6''
Main Level Living Room 17'6'' x 11'6''
Main Level Eat In Kitchen 15'11'' x 11'0''

Utilities

Electricity Available
Natural Gas Available
Telephone Available

https://www.realtor.ca/real-estate/27456543/141-ardagh-road-barrie